Big Things Happening
Hi there! Nice to converse with you all again 🙂
Justin and I bought our house over three years ago and immediately started turning it into our own little slice of heaven. But wait, three years? How did that happen?! That means six birthdays, four Christmases, three wedding anniversaries, one FloPo, and countless home improvement projects. And now, we are in the midst of planning a massive addition and remodel to our house. Woohoo! Big things happening over here! And, for the record, I’ll claim that house planning has taken up all of my time and not allowed me to do any blogging for almost a year… Oops…

From the beginning, we had plans to add on to and remodel our 1,100 square foot house. It was only a matter of time, money, and an agreed-upon design: the latter of which proved to be more difficult than anticipated. After about two years of pinching our pennies and tossing around ideas, we sat down to design our dream home (within the constraints of our budget, the existing house, and the city’s many, many, many rules, of course!). Probably to the detriment of our project, we started planning and sketching before we had done any research on the city’s rules and regulations. Double oops…

Our original plan was to build a two-story addition over the existing concrete patio in the backyard (where there was once a lean-to with doors and windows that leaked like a sieve; remember that?). Two of the existing bedrooms would be combined into a master suite, the new first floor addition would be home to the kitchen and a living room open to the backyard, and the new second floor would have two bedrooms, a bathroom, and a laundry room. Sounds pretty peachy, right?

Wrong. Well, maybe it sounds peachy, but reality turned out to be a rude awakening. The city we live in has very, very strict rules on what projects are considered “remodels” and what projects would be considered “new construction.” By building up and out, we would land squarely in the category of new construction. Meaning buried utilities (even though the power pole in our front yard would still be there), interior fire sprinklers, higher fees, a community design and planning hearing… just to name a few of the costly differences. In short, if the project was deemed new construction it would push our timeline out another year or two while we could pinch more pennies. And that didn’t sound peachy.

Obligatory Flo pic
And to be honest, this wasn’t a bad thing in my opinion: I was never crazy about having a two-story house. While trying to plan our house in this configuration, we kept running into the same roadblocks: the upstairs bedrooms and bathroom were significantly larger than the downstairs, we couldn’t get the master suite to really function properly, the laundry room was upstairs… You get the picture. So we attempted to design our house as a single story and were instantly more successful! Where we had been stuck with the two-story conundrums for months, we were able to come up with a basic single-story floor plan in about a day.

Sometimes you need five monitors to plan a house!
Now that we had our basic floor plan, we spent the next few months refining the details and coordinating with the city to make sure we stayed under the “new construction” thresholds. We submitted architectural plans in July and, after a few back-and-forth issues with the city, we got our architectural approval in September on the day we left for an anniversary backpacking trip in Yosemite.

On another tangent, I couldn’t write this post without mentioning that Justin has done so much work over the past year… No architect hired for this project! Just my wonderfully talented and patient husband. And patience was of the utmost importance as I continually asked him to try different configurations and slightly altered details for the floor plan, kitchen layout, window placement… Over and over and over!

I think I exhaust them…
We submitted our building permit plans to the city a few days before Christmas and received our first round of comments back from the City this week (!!!). Call me paranoid or superstitious or crazy, but I didn’t want to post this until we had heard something from the City. I’ve been having nightmares that the City would send the plans back to us and say, “Just kidding! Your project is new construction. Please start over.” My dreams have been reminiscent of drawing the “Go to Jail” card in Monopoly. Okay, now that I type this and verbalize the thought, I think maybe I am crazy…

Yes, I think I am crazy.
Anyway, the point of this super long post is that we’re in the process of getting our building permit to make our house super fantastically amazingly wonderful. Yes, it deserves that many superlatives. We’re planning to do a lot of the work ourselves with the help of many friends and family members who have already volunteered their time and expertise. I’ll try to update the blog periodically with our progress, but we all know how those promises tend to turn out.
Here are the stats of our house as it is now, and our house as it will be (hopefully when it’s finished in about a year!):
| Square Footage | Bedrooms | Bathrooms | |
| Existing | 1,104 | 3 | 1.5 |
| Proposed | 2,092 | 3 | 2.5 |
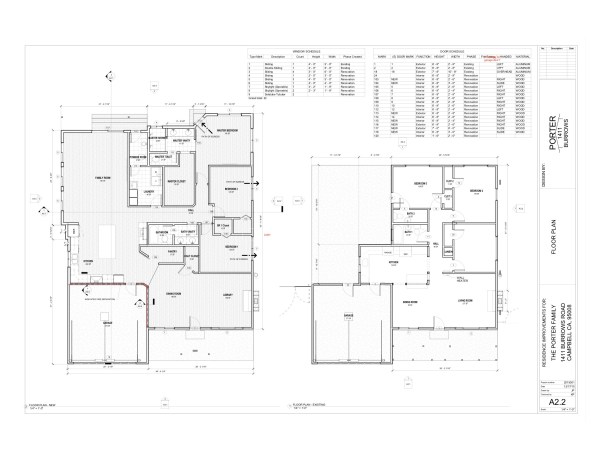
Some of you may think we’re crazy for doing this and not increasing the number of bedrooms. But I would be the first one to tell you that we’re gaining a library (that may be converted to a bedroom in the distant future), a coat closet, a walk-in pantry, a laundry room, a kick-ass kitchen, living space that opens into the backyard, and a master suite. Without further ado, here are the existing and proposed floor plans:

I hope you are all as excited about the next phase of home improvement as we are! Any tips and tricks on construction, maintaining sanity during a remodel, and living without a functioning kitchen are more than welcome 🙂


Glad to see your blog back! You’ve put so much into planning, I’m excited for you that you are ready to get started on construction. You can count us in for some weekend help.
Nancy
>
Looks great. You are doing this at the right ages
This sounds absolutely wonderful Justin and Kaysea! And I know that it will turn out beautifully with all the talents in both of your families and the willingness of all of them to share those talents and hard work. I’m sure there will be stressful times, but it will be well worth it in the end. Good Luck!
Looking forward to seeing you in June and hearing about the progress.
Love, Aunt Jane
I’ll be there, can’t wait!!